#} Offices - The Modernist
Aanmelden

Aanmelden

The Modernist wordt vertegenwoordigd door CBRE Nederland.
Wanneer u zich nu inschrijft, nemen zij spoedig contact op.

Cool. Transparent. Vigorous. The Modernist is not just your everyday office space. The Modernist elevates, creates room for thought, speaks out without shouting.

Working on higher ground

Het kantoorframe van The Modernist telt vier lagen met vloeroppervlaktes tot maximaal 3.000m² VVO. Zelfs voor Rotterdam zijn deze oppervlakten uniek, zeker op een zo centraal gelegen locatie. Sterker: ze zijn er niet. Het ruime vloerconcept is gecombineerd met grotere plafondhoogtes. En dat creëert ruimte voor de toepassing van vides. Sowieso kan vrijwel elk idee of elke wens worden ingevuld; van groots opgezette loft-achtige werkomgeving tot traditionele kamerindeling.

Het concept van The Modernist is spannend. Het is een samensmelting van verschillende lagen en dimensies tot een congruent, verleidelijk geheel. De gelaagdheid omvat laagbouw met een plint en hoogbouw met twee woontorens met uitzicht over de stad.

The Modernist biedt grote, lichte, heldere werkruimtes die aan alle kanten veel uitzicht bieden. En waarin op elke hoogte vides kunnen worden gecreëerd voor de aanleg van, bijvoorbeeld, inpandige groenvoorziening. Deze zorgen voor een visuele verbinding van verdiepingen, dragen bij aan de luchtkwaliteit en verbeteren de energieprestatie.

Door het royaal toepassen van glas, is The Modernist ongelooflijk transparant. Het extra brede raamwerk van de kantoorlagen en het extreme raamwerk van de mixzone in de plint halen de buitenwereld naar binnen en zorgen voor een enorme beleving van ruimtelijkheid.

read more
  • 1
  • /
  • 3
12.750m² hoogwaardige kantoorruimte
59 ondergrondse parkeerplekken met 16 oplaad-
punten
4 kantoorvloeren tot 3.000m² per vloer
Glasgevels van grond tot plafond
Optioneel: branding via gevel signing
Mogelijkheid tot eigen entree

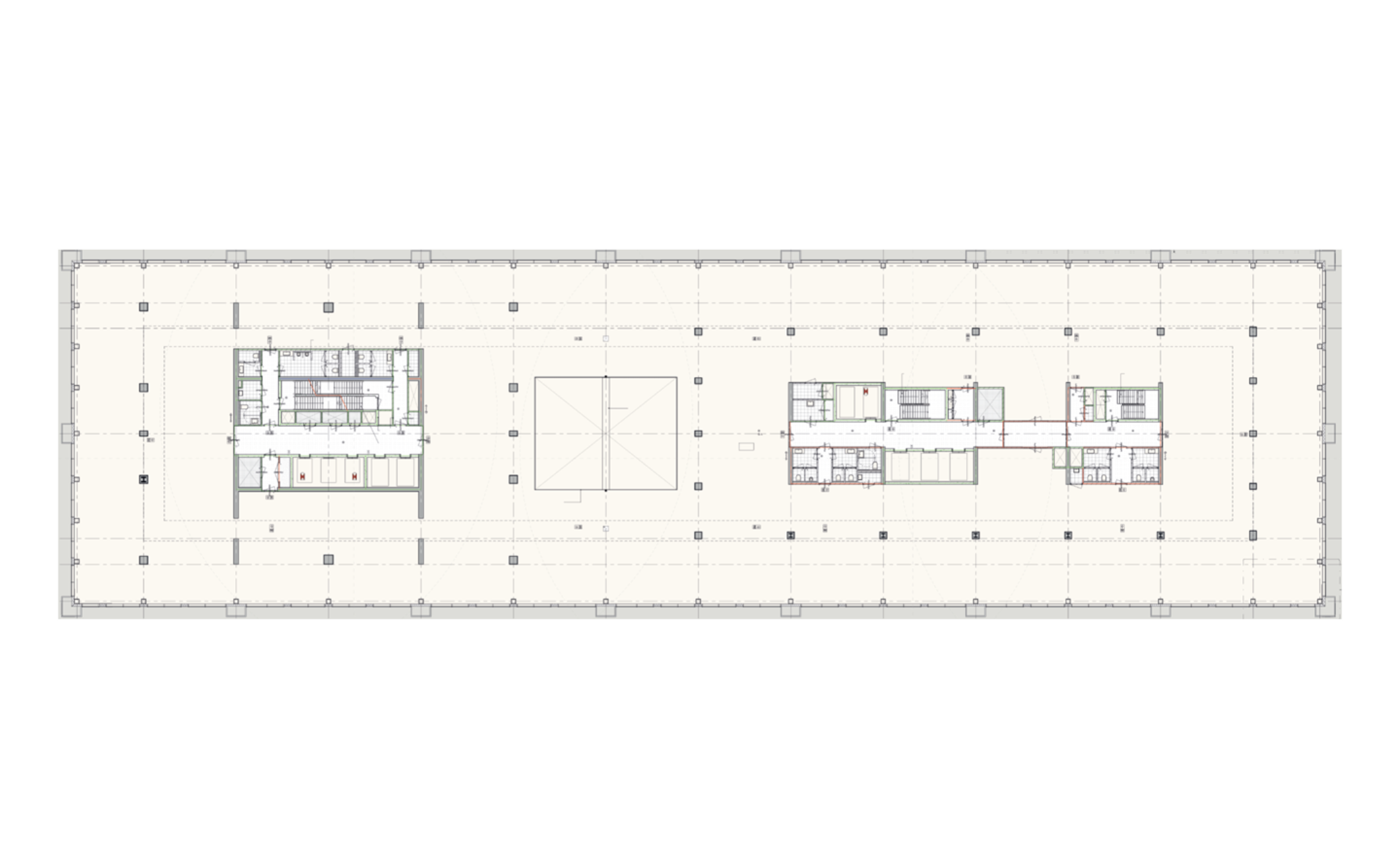
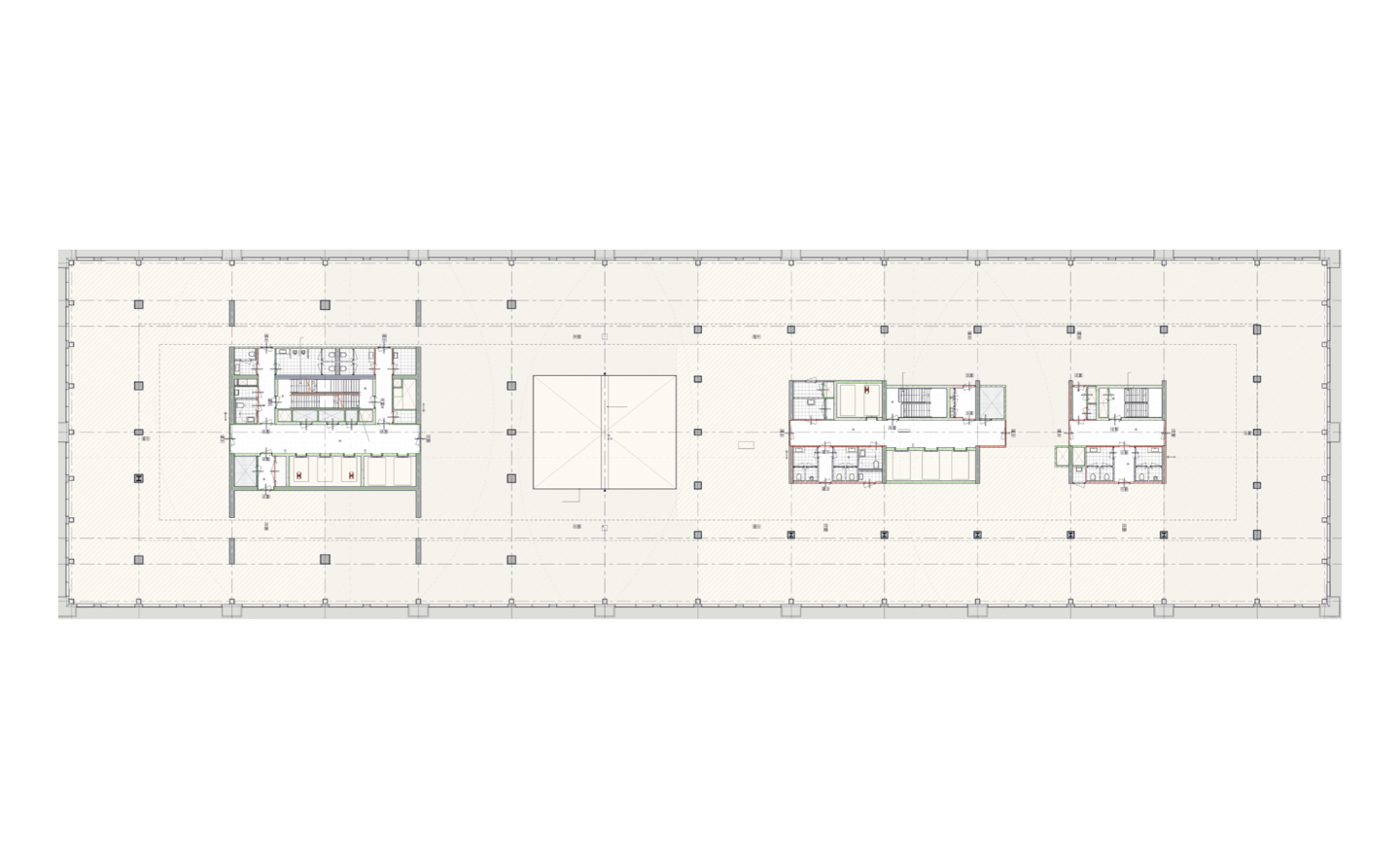
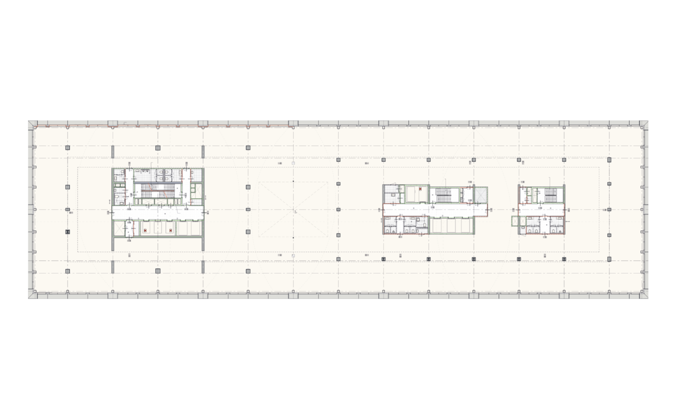
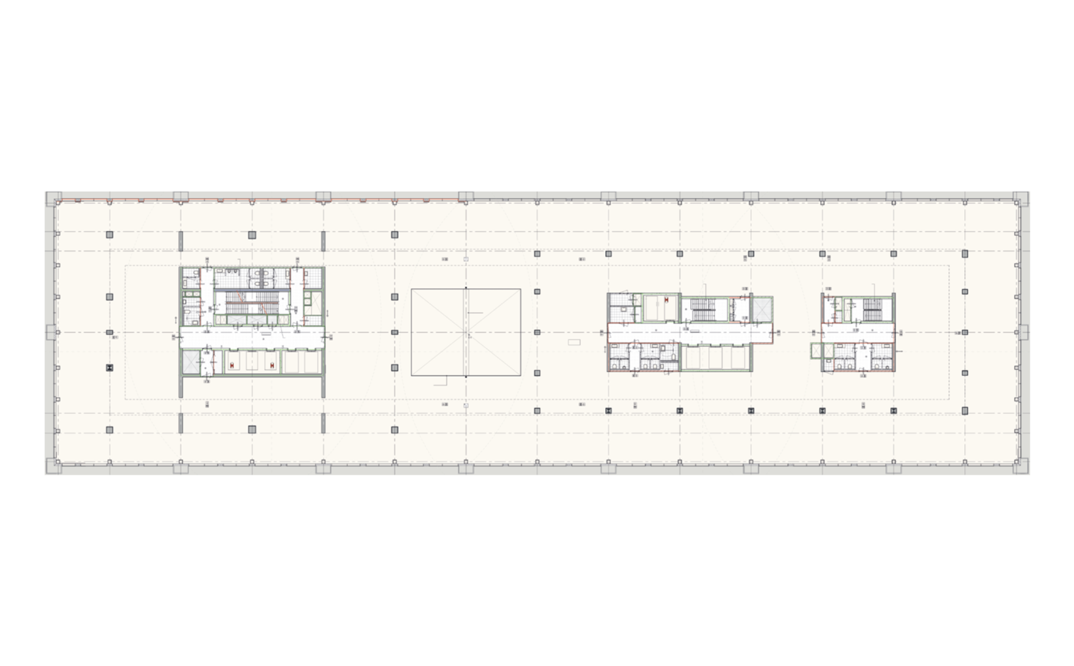
Floorplans

De vloeren van The Modernist zijn in te delen als een volledig open, loft-achtige omgeving of volledige verkamerde ruimte. In alle gevallen bieden de vloeren een capaciteit van ruim +100 werkplekken met daarnaast alle ruimte voor spreekkamers en facilitaire ruimtes.

2021 - 2028
Project Planning

  • JUNI 2025 Bouw gestart
  • MAART 2026 Start verkoop fase 1
  • Q3 2026 Start bouw 1e woonverdieping
  • Q2 2028 Hoogste punt
  • Q4 2028 Oplevering

Download brochure:

  • Dit veld is bedoeld voor validatiedoeleinden en moet niet worden gewijzigd.
  • * verplicht veld

    Met het verzenden van dit formulier, gaat u akkoord met ons Privacy Statement